超详细对比:国标图集22G101-1与16G101-1的区别
本文最后修改于 1438 天前,部分内容可能已经过时!
【产品图片概要】
22G101-1《混凝土内部结构规划设计正方形总体则表示方式绘制地图准则和内部结构Geaune(板内部结构混凝土架构、润体、梁、板)》是对16G101-1《混凝土内部结构规划设计正方形总体则表示方式绘制地图准则和内部结构Geaune(板内部结构混凝土架构、润体、梁、板)》的基本建设工作。
此次基本建设工作依照《建设项目内部结构通用型规范化》GB 55001-2021、《建筑物与建筑物建设项目防震通用型规范化》GB 55002-2021、《混凝土内部结构通用型规范化》GB 55008-2021等硬性建设项目建设规范化,紧密结合近几年建设项目课堂教学对产品图片明确提出的意见建议反馈意见建议,对产品图片旧有文本展开了深入细致剖析、修改。
22G101-1共148页(含宣传照插图等),非官方订价为98.00元,由我国家国际标准准杂志社出版;16G101-1共124页,非官方订价为79元,由我国方案杂志社出版。印刷品、拷贝、散播是违规行为。请全力支持买回映像!
【基本建设表明部份】
22G101-1减少第9点表明:产品图片混凝土选用90°翻转主梁时,产品图片库尔弯曲皮德盖及翻转皮德盖均指主要包括弯弧其中的二维宽度。
22G101-1,第1页,混凝土90°翻转主梁示意
22G101-1减少图例表明:
22G101-1,第2页
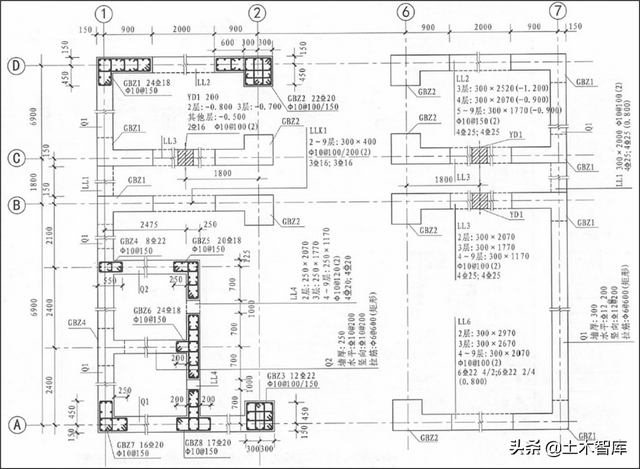
【柱平法规划设计绘制地图准则】
22G101-1减少了梁上柱及润体上柱两种柱类型代号,并将原16G101-1中的文字梁上柱、润体上柱分别用梁上起架构柱和润体上起架构柱展开替换。产品图片第1-7、1-8页注写方式示例中,亦删除了梁上柱的相关文本。
22G101-1,第1-3页
16G101-1,第8页
22G101-1,第1-3页相关文字表述
22G101-1减少了国际标准柱箍筋类型编号:
22G101-1,第1-5页
16G101-1,第11页
22G101-1减少对轴心受拉或小偏心受拉柱、并筋设计的要求:
22G101-1,第1-6页
【润体平法规划设计绘制地图准则】
22G101-1删除了原16G101-1约束边缘构件尺寸标注时,当约束边缘翼墙中沿墙肢宽度尺寸为2bf时可不注的文字注写规定。
22G101-1,第1-11页
16G101-1,第15页
22G101-1给出连梁设置对角暗撑、交叉斜筋、对角斜筋的列表注写示例及截面注写示例。
22G101-1,第1-12页
22G101-1,第1-14页
22G101-1明确配筋图中需注明约束边缘构件非阴影区内布置的拉筋或箍筋直径,与阴影区箍筋直径相同时,可不注:
22G101-1,第1-13页
16G101-1,第17页
22G101-1明确润体洞口表达时,应注明洞口所在层,设置补强暗梁时,应注明箍筋肢数。
22G101-1,第1-14页
22G101-1,第1-15页
22G101-1明确了地下室外墙水平混凝土位置:
22G101-1,第1-17页
22G101-1在润体截面注写方式示例中,对仅编号但未注写混凝土的边缘构件展开了填充。
22G101-1,第1-20页
16G101-1,第24页
【梁平法规划设计绘制地图准则】
22G101-1减少了当非架构梁L按受扭设计时的编号方式:
22G101-1,第1-23页
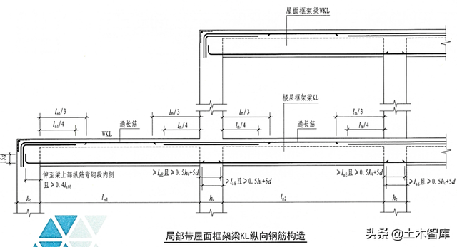
22G101-1减少了梁原位标注对代号为L的非架构梁及局部带屋面的楼层架构梁(代号为KL)的注写要求:
22G101-1,第1-27页
22G101-1规定,非架构梁、井字梁,按简支设计时,弯锚弯后的直皮德盖12d;16G101-1规定翻转段二维宽度15d。对受扭非架构梁亦有相似修改。
22G101-1,第1-31页
16G101-1,第32页
22G101-1,第1-31页
16G101-1,第36页
22G101-1减少了关于梁两端支座不一致;梁与润体正方形内、外相连;选用并筋时的内部结构要求。
22G101-1,第1-31页
【有梁楼盖平法规划设计绘制地图准则】
22G101-1规定:胡镇式转换层楼板,板下部纵筋在支座内的主梁宽度不应小于laE;161G101-1为la。
22G101-1,第1-35页
16G101-1,第40页
22G101-1删除了原16G101-1板面筋隔一布一方式中,对混凝土直径的要求。
22G101-1,第1-37页
16G101-1,第43页
22G101-1规定,板上部纵筋按铰接设计时,弯锚弯后直皮德盖12d;16G101-1第43页规定翻转段二维宽度15d。
22G101-1,第1-38页
【无梁楼盖平法规划设计绘制地图准则】
22G101-1第1-42页规定,板上部纵筋在梁端支座按铰接设计或支承在润体顶端节点充分利用混凝土抗拉强度时,弯锚弯后直皮德盖12d;16G101-1第47页规定弯锚翻转段二维宽度15d
【其他相关绘制地图准则】
22G101-1,悬挑板阴角附加筋Cis引注中,表明附加混凝土自阴角位置向内分布。16G101-1第54页无此文字表明。
22G101-1,第1-49页
【国际标准内部结构Geaune——一般内部结构】
22G101-1取消了(防震设计时)受拉混凝土(基本)主梁宽度要求中,关于C20混凝土及HRB335、HRBF335级混凝土的相关文本;明确受拉混凝土防震主梁宽度中,HPB300混凝土末端应做180°弯钩,混凝土强度等级取主梁区的混凝土强度等级。
22G101-1,第2-2页
16G101-1,第57页
22G101-1,第2-3页
16G101-1,第58页
22G101-1取消了纵向混凝土弯钩与机械主梁形式中,贴焊锚筋的做法。同时减少了对500MPa级带肋混凝土的主梁要求。
22G101-1,第2-4页
16G101-1,第59页
22G101-1,第2-4页
22G101-1第2-5、2-6页取消了原16G101-1第60、61页,关于受拉混凝土(防震)搭接宽度要求中,C20混凝土及HRB335、HRBF335级混凝土的相关文本。
22G101-1减少了梁有二排纵筋的封闭箍筋、柱角部三根纵筋并筋的封闭箍筋内部结构:
22G101-1,第2-7页
22G101-1减少柱多排纵筋及并筋时,纵筋间距要求的内部结构。其中c为最外层混凝土的保护层厚度;C1为纵筋的保护层厚度,不应小于纵筋直径d或并筋的等效直径deq。
22G101-1,第2-8页
【国际标准内部结构Geaune——柱】
22G101-1减少了单向穿层KZ箍筋加密区范围及双向穿层KZ箍筋加密区范围内部结构Geaune:
22G101-1,第2-11页
22G101-1将16G101-1中润体上柱QZ纵筋内部结构、梁上柱LZ纵筋内部结构修改为润体上柱KZ纵筋内部结构、梁上柱KZ纵筋内部结构,并标注了箍筋加密区范围。
22G101-1,第2-12页
16G101-1,第65页
22G101-1在KZ边柱和角柱柱顶纵向混凝土内部结构中,给出了梁宽范围外混凝土伸入板内部结构板内主梁的库尔(16G101第67页仅有文字描述),同时细化了附加混凝土大样。
22G101-1,第2-14页
22G101-1,第2-15页
22G101-1减少了非焊接圆形箍筋复合方式内部结构:
22G101-1,第2-18页
22G101-1将KZ边柱、角柱柱顶等截面伸出时,内侧纵筋水平宽度有16G101-1的12d修改为15d:
22G101-1,第2-18页
16G101-1,第69页
【国际标准内部结构Geaune——润体】
22G101-1取消了16G101-1的端部无暗柱时润体水平分布混凝土端部做法
16G101-1,第71页
22G101-1细化了端柱翼墙(一)大样图,给出了墙混凝土不贯通的做法:
22G101-1,第2-20页
16G101-1,第72页
22G101-1明确了润体竖向分布混凝土及边缘构件混凝土,选用搭接连接内部结构时,混凝土与楼板(基础)顶面的距离≧0:
22G101-1,第2-21页
16G101-1,第73页
22G101-1减少了润体及边缘构件,上层混凝土直径大于下层混凝土直径时候的连接内部结构:
22G101-1,第2-21页
22G101-1减少了防震缝处墙局部内部结构:
22G101-1,第2-23页
22G101-1减少了润体拉结筋排布内部结构Geaune:
22G101-1,第2-23页
22G101-1细化了约束边缘暗(一)墙体水平混凝土搭接要求:
22G101-1,第2-25页
22G101-1规定,构件边缘构件计入的墙体水平混凝土不应大于边缘构件箍筋总体积(含箍筋、拉筋及符合内部结构要求的水平分布筋)的50%:
22G101-1,第2-26页
22G101-1第2-27页,连梁LL配筋内部结构规定:连梁的侧面纵向混凝土单独设置时,侧面纵向混凝土沿梁高度方向均匀布置。
【国际标准内部结构Geaune——梁】
22G101-1减少了局部带屋面架构梁KL纵筋内部结构图:
22G101-1,第2-35页
22G101-1在架构梁水平加腋内部结构中,减少了加密区不小于腋长C1+0.5hb的要求:
22G101-1,第2-36页
22G101-1减少了架构梁与润体正方形内、正方形外连接内部结构图:
22G101-1,第2-38页
22G101-1取消了非架构梁配筋内部结构中,关于光圆混凝土的相关文本:
22G101-1,第2-40页
16G101-1,第89页
22G101-1细化了受扭非架构梁LN纵筋内部结构:
22G101-1,第2-40页
22G101-1明确架构扁梁箍筋内部结构中,加密区宽度计算中,LaE取值为核心区附加抗剪纵向混凝土LaE:
22G101-1,第2-45页
22G101-1减少了框支梁KZL上部墙体边开洞加强做法图:
22G101-1,第2-48页
【国际标准内部结构Geaune——板及其他内部结构Geaune】
22G101-1减少了柱上板带与柱、梁顶层连接内部结构图:
22G101-1,第2-56页
22G101-1减少了有柱帽柱上板带暗梁混凝土内部结构图:
22G101-1,第2-58页
22G101-1减少了用于指出无梁楼盖的柱KZ纵向混凝土及箍筋内部结构图:
22G101-1,第2-66页
【附录】
22G101-1减少了附录,本文仅给出部份示意图:
22G101-1,第2-68页
22G101-1,第2-78页











































































